Woonoppervlakte
Circa 305 m²
Perceeloppervlakte
Circa 1267 m²
Bouwjaar
Gebouwd in 2002
Aantal kamers
10 kamers (5 slaapkamers)

Houtduiflaan 14

6446 DH, Brunssum (Limburg)

Op een rustige locatie in de geliefde wijk "Amstenraderveld" mogen wij u deze ruime villa aanbieden. De vrijstaande woning heeft maar liefst 305 m² woonoppervlakte en is gesitueerd op een perceel van 1.267 m² en biedt daarmee een zee aan ruimte en mogelijkheden. Kenmerkend zijn het levensloopbestendige karakter (ruime slaapkamer en badkamer op de begane grond) naast de royale living met open keuken en optimaal tuincontact, de 4 slaapkamers en tweede badkamer op de verdieping en een volledige ''onderkeldering'' met inpandige garage en een grote afgewerkte ruimte, die ideaal als bijvoorbeeld praktijk of fitness/wellness ruimte gebruikt zou kunnen worden.

De villa is gelegen in de relatief jonge wijk Amstenraderveld, aan de rand van Brunssum (Brunssum-West) in een parkachtige omgeving. Door zijn centrale ligging en de aangelegde 'Buitenring' is de locatie uitstekend ontsloten ten opzichte van de belangrijkste uitvalswegen richting Heerlen, Maastricht, Eindhoven en Aken en zijn belangrijke voorzieningen op korte afstand gelegen, alsmede lager en middelbaar onderwijs.

Voor een volledige eerste indruk verwijzen wij graag naar de unieke woningwebsite 'Houtduiflaan14.nl'. met waar o.a. ook een videopresentatie en virtuele tour van deze woning te vinden zijn. Interesse gewekt? Neem dan contact op met Marcel Werrij, uw persoonlijke makelaar bij Spauwen | Werrij voor het maken van een bezichtigingsafspraak.

INDELING

Begane grond
Entree: hal met trapopgang, meterkast en toegang naar het souterrain en de living. De living is zeer ruim van opzet (ca. 78 m²) en kenmerkt zich door enorm veel daglichttoetreding middels grote puien, robuuste houten spoorbielzen vloer, luxe keuken en optimaal tuincontact. Zeker in het gedeelte waar een soort van grote erker is gecreëerd heb je het idee dat je midden in de natuur/tuin zit en kun je heerlijk in alle privacy genieten.

De moderne keuken (ca. 14 m²) met kookeiland en kastenwand is voorzien van een mooi hardstenen werkblad, vijfpits-gaskookplaat inclusief wokbrander, afzuigkap, inbouwvaatwasser, koelkast en 2 inbouw combi-ovens. Ideaal is de separate bijkeuken (ca. 7 m²) die direct achter de keuken is gesitueerd met aansluitpunten voor was/droogmachine en tevens is hier de CV-ketel gesitueerd. De combi-ketel is een Atag uit 2017 en is in eigendom.

Achter de woonkamer/keuken is een ruime slaapkamer (19 m²) met aangrenzend de badkamer en tevens separaat nog een walk-in closet van ca. 6 m². Vanuit de slaapkamer is er eveneens een optimaal tuincontact en deze is voorzien van de mooie spoorbielzen vloer. De badkamer (ca. 12 m²) is ruim van opzet en heeft een vrijstaand ligbad/bubbelbad, wastafelmeubel, inloopdouche en toilet.

1e verdieping
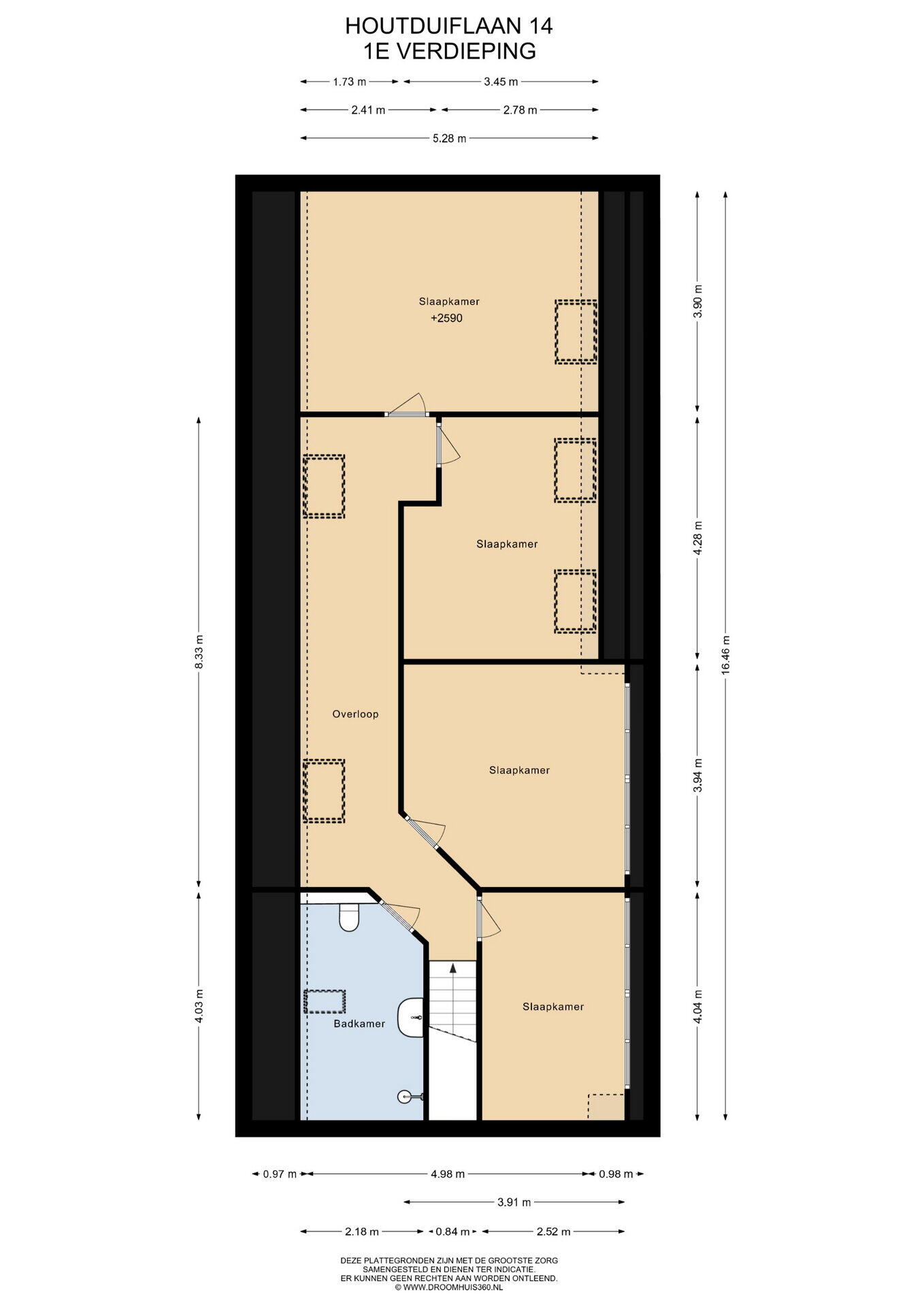
Via de ruime overloop zijn vier slaapkamers en een tweede badkamer bereikbaar. Alle kamers zijn aan de tuinzijde gesitueerd en voorzien van een strakke laminaatvloer. De eerste kamer (ca. 10 m²) is momenteel ingericht als thuiswerkplek/kantoor. De tweede en derde kamer zijn beiden ca. 14 m² en bieden volop ruimte en een mooi uitzicht op de tuin. De grootste slaapkamer ligt achter door en is dik 20 m² en is voorzien van een groot dakraam. Door de steile plafonds aan de zijkanten is een dakkapel overbodig, maar zou wel nog toegevoegd kunnen worden voor nog meer ruimte en licht. De overloop is voorzien van diverse ramen, zodat de gehele verdieping lekker licht aandoet. De eerste en tweede kamer zijn voorzien van elektrische rolluiken.

De tweede badkamer (ca. 9 m²) is functioneel ingericht met een douche, (2e) toilet en wastafel.

Souterrain
Via de hal te bereiken souterrain/beneden verdieping die onder de gehele begane grond loopt. Deze verdieping bestaat uit een royale multifunctionele ruimte van maar liefst 67 m² die ideaal is om te gebruiken als sportruimte/werkruimte/hobbyruimte/wellness ruimte, kantoor aan huis etc. Deze kamer heeft een stahoogte van 2,25 m en twee bovenlichten voor natuurlijke lichtinval. Theoretisch zou er nog meer lichtinval gecreëerd kunnen worden, waardoor deze ruimte ook als woon/slaapvertrek gebruikt kan worden, ideaal als men de woning voor dubbele bewoning wilt gebruiken. De vloer is netjes afgewerkt met tegelvloer in houtmotief, die over de gehele verdiepingsvloer ligt. Tevens is er nog een handige opslagruimte/berging (8 m²) en inpandige garage (25 m²). De garage is voorzien van een elektrische sectionaal poort.

Tuin:
De fraai aangelegde tuin biedt volop privacy en is voorzien van meerdere terrassen, een sfeervolle vijverpartij, een groene graszone en volwassen beplanting met bomen en struiken. Dankzij de verschillende zitplekken is er altijd een plek in de zon of schaduw, waarbij diverse spullen in het aanwezige tuinhuis gestald kunnen worden. Een ideale tuin voor wie houdt van rust, natuur en buitenleven. Enig aandachtspuntje zijn de vlonders, die zijn langzaam aan vervanging toe.

De inrit/parkeerplaats, feitelijk de hele woning, is bereikbaar via een afsluitbare poort die aan de voorzijde van de woning is gesitueerd. Rechts is plaats voor twee auto's en hier is tevens een laadpaal voor elektrische auto's.

Bijzonderheden:
- Ruime villa op mooie locatie;
- Levensloopbestendig;
- Diverse opties, van kantoor/praktijk aan huis, tot wellnessruimte of dubbele bewoning;
- Kozijnen: houten kozijnen met dubbele beglazing;
- CV-ketel, Atag, 2017, combi-ketel in eigendom;
- Isolatie: optimaal geïsoleerd (dak/spouw/vloer);
- 15 zonnepanelen in eigendom;
- B-label. Dit betreft nog een oud label, voordat de zonnepanelen waren geïnstalleerd, zal nu waarschijnlijk een A-label zijn;
- laadpaal voor elektrische auto aanwezig;
- In overleg beschikbaar (2025 overdracht).

Deze informatie is door ons met de nodige zorgvuldigheid samengesteld. Onzerzijds wordt echter geen enkele aansprakelijkheid aanvaard voor enige onvolledigheid, onjuist of anderszins, dan wel de gevolgen daarvan.

De waarborgsom/bankgarantie is 10% van de koopsom. De koper dient deze binnen 2 weken nadat de koopovereenkomst definitief is bij de desbetreffende notaris te deponeren.

Ter bescherming van de belangen van zowel koper als verkoper, wordt uitdrukkelijk gesteld dat een koopovereenkomst met betrekking tot deze onroerende zaak eerst dan tot stand komt nadat koper en verkoper de koopovereenkomst hebben getekend ("schriftelijkheidsvereiste").

Plattegronden

Overdracht

Vraagprijs
€ 825.000 k.k.
Status
Verkocht
Aanvaarding
In overleg

Bouw

Object type
Villa, vrijstaande woning
Soort bouw
Bestaande bouw
Bouwjaar
2002
Soort dak
Zadeldak bedekt met pannen

Oppervlakte en inhoud

Woonoppervlakte
305 m²
Perceeloppervlakte
1267 m²
Inhoud
1107 m³
Overige inpandige ruimte
25 m²
Externe bergruimte
11 m²

Indeling

Aantal kamers
10 kamers (5 slaapkamers)
Aantal badkamers
2 badkamers
Badkamervoorzieningen
Ligbad, toilet, douche, wastafel toilet, wastafel
Aantal woonlagen
3 woonlagen
Voorzieningen
Tv-kabel, buitenzonwering, schuifpui

Energie

Energielabel
B
Energielabel registratie
15-07-2016
Isolatie
Dakisolatie, muurisolatie, vloerisolatie, dubbel glas
Verwarming
Cv-ketel
Warm water
Cv-ketel
Cv ketel
Atag combiketel gas gestookt uit 2017 (eigendom)

Buitenruimte

Ligging
Aan rustige weg, in woonwijk, beschutte ligging
Tuin
Achtertuin, voortuin, zijtuin, tuin rondom
Afmetingen achtertuin
372 m² (31 meter diep en 12 meter breed)
ligging tuin
En bereikbaar via achterom

Bergruimte

Schuur / berging
Vrijstaande houten berging

Garage

Soort garage
Inpandig
Capaciteit
1 auto
Voorzieningen
Elektrische deur

Parkeergelegenheid

Soort parkeergelegenheid
Openbaar parkeren, op eigen terrein

Energieverbruik in Brunssum

Energielabel deze woning

Energielabel B

Publicatie energielabel: 15-07-2016

Stroomverbruik per jaar

3990 kWh

(Gemiddelde vrijstaande woning in Brunssum)

Gasverbruik per jaar

1970 m³

(Gemiddelde vrijstaande woning in Brunssum)

* Cijfers zijn afkomstig van het CBS en bedoeld als indicatie en kunnen verschillen voor deze woning

Indicatie hypotheeklasten

Eigen inleg:
Spaargeld / overwaarde

Rente:
Laagste 10-jaars rente

Laagste 10-jaars rente

2,85% - Centraal Beheer Groen... - NHG


3,08% - Centraal Beheer Groen... - 80%

Laagste 20-jaars rente

3,29% - Centraal Beheer Groen... - NHG


3,52% - Centraal Beheer Groen... - 80%

Laagste 30-jaars rente

3,41% - Centraal Beheer Groen... - NHG


3,74% - Centraal Beheer Groen... - 80%


Hypotheek:

Bruto maandlasten: € 0 p/m

Netto maandlasten: € 0 p/m

Hoe berekenen we dit?

Het rentepercentage is gebaseerd op de laagste 10 jaars vaste rente voor één hypotheekdeel. De vermelde rente (3.08% zonder NHG) is gecontroleerd op 13-02-2026. Deze berekening is gebaseerd op een annuïteitenhypotheek die volledig wordt afgelost, waarbij de maandlasten gedurende de gehele looptijd gelijk blijven. De werkelijke rente en netto maandlasten kunnen variëren, afhankelijk van uw persoonlijke situatie en de hypotheekverstrekker. Raadpleeg een financieel adviseur voor een nauwkeurige berekening en advies. Aan deze berekening kunnen geen rechten worden ontleend; het dient enkel als indicatie.

Documentatie

Zonnegrenzen bekijken

Op de kaart

Inwoners in Brunssum

Cijfers voor postcodegebied 6446

Totaal aantal inwoners
4785 inwoners
Mannen
50%
Vrouwen
50%

Inwoners in Brunssum

Cijfers voor postcodegebied 6446

tot 15 jaar
15%
15 tot 25 jaar
10%
25 tot 35 jaar
23%
45 tot 65 jaar
31%
65 en ouder
21%

Huishoudens in Brunssum

Cijfers voor postcodegebied 6446

Eenpersoons zonder kinderen
33%
Meerpersoons zonder kinderen
31%
Huishoudens zonder kinderen
64%

Huishoudens in Brunssum

Cijfers voor postcodegebied 6446

Huishoudens met één kind
9%
Huishoudens met meerdere kinderen
26%
Huishoudens met kinderen
35%

Woningen in Brunssum

Cijfers voor postcodegebied 6446

Woningen voor 1945
24%
Woningen tussen 1945 en 1965
19%
Woningen tussen 1965 en 1975
3%
Woningen tussen 1975 en 1985
11%
Woningen tussen 1985 en 1995
3%

Woningen in Brunssum

Cijfers voor postcodegebied 6446

Woningen tussen 1995 en 2005
26%
Woningen tussen 2005 en 2015
9%
Woningen na 2015
4%
Huurwoningen
40%
Koopwoningen
60%

Overige in Brunssum

Cijfers voor postcodegebied 6446

Gemiddelde WOZ waarde
€ 189.000,-
Personen onder de 65 met uitkering
11%

Overige in Brunssum

Cijfers voor postcodegebied 6446

Adressen per km²
1477
Stedelijkheid (schaal 1 op 5)
60%
Postcode kaart 6446 Gemeente kaart brunssum

Korte feiten over Brunssum

Brunssum (Limburgs: Broenssem) is een stad en gemeente in het zuidoosten van Nederlands Limburg. De gemeente telt 27.773 inwoners (1 januari 2024, bron: CBS) en heeft een oppervlakte van 17,30 km². Brunssum ligt in de Oostelijke Mijnstreek en maakt deel uit van het bestuurlijke samenwerkingsverband Parkstad Limburg.

Spauwen | Werrij

Indien u vragen heeft of u wilt een bezichtiging inplannen, dan kunt u gebruik maken van het formulier hiernaast. Er zal daarna op korte termijn contact met u worden opgenomen.

Dr. Poelsstraat 34

6411 HH, Heerlen

045 737 02 10 mw@spauwen-werrij.nl www.spauwen-werrij.nl

Spauwen | Werrij

Spauwen | Werrij is actief in de vastgoedsector en heeft haar hoofdkantoor in Heerlen. Onze expertise ligt in het taxeren, bemiddelen en adviseren binnen commercieel vastgoed, maar ook in de aan- en verkoopbemiddeling van woningen staan wij graag voor u klaar.

Onze specialisten begeleiden deze activiteiten, waarbij iedere sector zijn eigen specifieke werkwijze kent. Commercieel vastgoed vraagt immers om een andere benadering dan particulier onroerend goed. Wat echter altijd centraal staat, is de kwaliteit en toewijding waarmee wij werken, zodat wij het beste resultaat voor u kunnen realiseren.

Door ons lidmaatschap van NVM (Business), het gebruik van moderne taxatiemethoden (TMI), onze registratie bij het NRVT en het naleven van de hoogste ethische normen (RICS), mogen onze klanten rekenen op een dienstverlening van de hoogste kwaliteit.

Spauwen | Werrij biedt een gemotiveerd team met veel ervaring in diverse vastgoedsectoren en een onafhankelijke kijk op de markt. We combineren ambitie met betrokkenheid, en werken met creativiteit en ondernemerschap om alles tot in de puntjes te verzorgen. Kortom, wij zijn uw betrouwbare partner in vastgoed!

Spauwen | Werrij
Reviews Spauwen | Werrij

Houtduiflaan 14, Brunssum

€ 825.000 k.k. - Verkocht

Helaas, deze woning is verkocht!

Net te laat, deze woning is al verkocht. Laat een zoekopdracht bij ons achter zodat wij u direct kunnen helpen wanneer er nieuw aanbod beschikbaar komt.